DIMORA PERLASCA

una nuova vita ad un sottotetto ormai fuori uso

cernobbio (co) _
2023 - 2025
complesso plurifamiliare _ n. 04 appartamenti
370 mq lotto | 430 mq abitativi

Il fabbricato è di tipo indipendente e ubicato nelle vie centrali della città di Cernobbio; ritrovato, al tempo dell’acquisto e del consecutivo rilievo metrico da parte dello studio CarcanoStucchi, in stato di abbandono ed ormai da tempo privo di manutenzione.

la proprietà risultava già suddivisa in tre unità residenziali - una per piano - lasciando a destinazione accessoria i locali collocati al livello sottotetto. la struttura è completamente realizzata in muratura di pietrame, solai in legno e copertura in legno con manto in tegole marsigliesi, come tradizione locale.

L’intervento dello studio di architettura volge alla riqualificazione dell’intero complesso in termini di salubrità delle strutture e in termini estetici della stessa, oltre che alla valorizzazione dell’intera proprietà anche in termini funzionali.

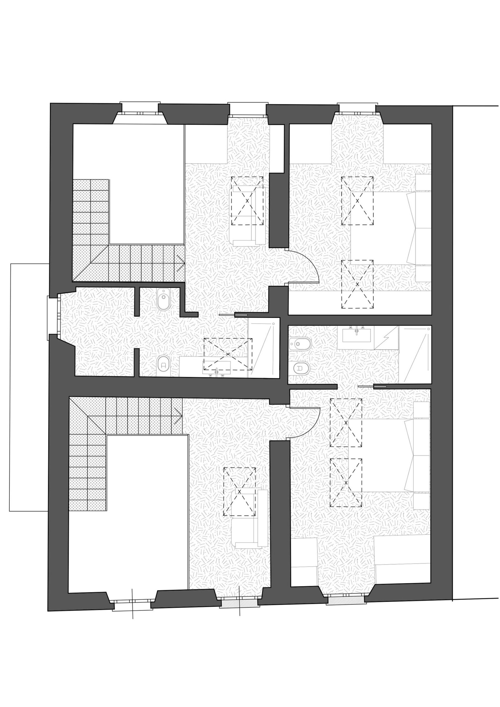
Il progetto difatti prevede la ristrutturazione completa del piano secondo e del piano sottotetto con recupero del volume ai fini abitativi, oltre che alla ristrutturazione e riorganizzazione interna degli appartamenti ai due livelli inferiori. Rispetto agli ultimi due livelli dell’immobile si opta per lo sviluppo di due appartamenti con tipologia duplex, dove si riesce a sfruttare lo spazio a disposizione in altezza. In questo modo, il vano scala condominiale risparmia spazio all’abitare che cambia forma e risulta divertente ed inusuale: soggiorni a doppia altezza, grandi e luminosi lucernari per gli spazi sottotetto, profili in ferro a L accoppiati e pannelli in legno osb per la realizzazione dei soppalchi, due scale leggere in ferro piegato che permettono il collegamento dei due livelli di entrambi gli appartamenti.

l’idea progettuale è quella di fornire spazi flessibili e multifunzionali per gli alloggi a permanenza temporanea; che possano essere modificati e trasformati nel tempo, offrendo possibilità abitative pronte a soddisfare differenti esigenze.

l’intervento sull’intero edificio mette in primo piano la sistemazione e l’isolamento della copertura esistente, fornendo maggiori prestazioni termiche ed energetiche anche grazie all’integrazione di nuovi pannelli fotovoltaici a sostegno dei consumi del condominio e a supporto dei nuovi impianti all’avanguardia con sistema pompa di calore.

l’ossatura centrale dell’immobile, il vano scala condominiale, viene del tutto messo a nudo dagli strati superficiali aggiunti nel tempo e quindi riportato alla sua anima in mattoni pieni e pietra locale, rispettivamente utilizzati per le pareti verticale e le pedate dei gradini. questo ambiente non poteva che essere valorizzato per la sua essenza materica e tradizionale. si aggiunge semplicemente così un corrimano disegnato e conseguentemente realizzato interamente su misura, a seguire il percorso ed accompagnare gli ospiti all’ingresso dei diversi appartamenti.

Dal punto di vista estetico si volge a mantenere, o meglio, enfatizzare e valorizzare le caratteristiche tipologiche esistenti del fabbricato nei suoi lineamenti semplici e tradizionali. L’aggiunta di cornici alle aperture, profilo marcapiano, soglie in pietra locale e l’utilizzo di tonalità di grigi tenui per le finiture di facciata, conferiscono all’immobile un tono elegante e signorile, in memoria delle abitazioni tipiche della zona cernobbiese. Cortile di pertinenza sfruttato per il posteggio di autovetture e attività di svago.

Dimora Perlasca offre così all’oggi una variegata offerta abitativa ed un volto rinnovato.

Prenota il tuo soggiorno presso “Spazio Perlasca” e scopri l’ampia offerta di alloggi:

 

cantiere

stato di fatto

incarico:
progetto architettonico _ preliminare, definitivo, esecutivo e direzione lavori

committente:
privato

imprese:
Impresa Mondelli Battista srl
Impresa Dervishi
3WIRE
Termoidraulica SIMA snc
MEC carpenteria metallica

collaboratori:
Studio Ing. Dotti

fotografie / render:
Beatrice Giani
Lorenzo Giani

Contattaci qui