VILLA ANTONIETTA

da Hotel Savoia a lussuosa residenza privata

laglio (co)
2011 - 2017
villa storica _ dependance, parco, piscina, spa
4.254 mq lotto | 2.157 mq abitativi

L’attuale Villa Antonietta è stata progettata e costruita alla fine dell’800 non con destinazione residenziale, ma alberghiera.

Già nel secolo XVIII, e durante tutto il secolo successivo, il lago di Como era stato meta della nobiltà internazionale e dell'élite intellettuale europea e d'oltreoceano che, nelle sue opere letterarie (Shelley, Wordsworth, Stendhal, Ruskin, Wharton) e artistiche (Turner, Corot), ne aveva celebrato le bellezze.

Per consolidare definitivamente il mito del Lario furono determinanti l’ascesa della borghesia industriale, lo sviluppo dei mezzi di comunicazione e l'aumento delle strutture di ricezione.

Le rive del lago vennero ridisegnate dalle nuove residenze estive private e dai giardini attorno alle ville, arricchiti da vegetazione, fiori ed esemplari esotici. Negli ultimi tre decenni dell’800 si assiste al raggiungimento di traguardi che segneranno l’ascesa di questo contesto contemporaneamente montano e lacustre:

1875 viene ultimato il tratto Milano-Como delle ferrovie dello Stato
1882 si completa il traforo del San Gottardo
1898 si inaugura la linea Saronno-Grandate delle ferrovie Nord
1890 la Navigazione Lariana porta la sua flotta a 14 battelli e 1 rimorchiatore
1899 viene fondata, su iniziativa di un parlamentare comasco, la Società Italiana degli Albergatori che proprio a Como avrebbe celebrato il suo primo congresso l’anno successivo.

In questo contesto storico va collocata la nascita dell’Hotel Savoia, rimasto in attività fino agli anni ’30 e successivamente trasformato in Villa Antonietta dalla Famiglia Molinari.

Proprio in quegli anni i primi manuali di architettura alberghiera dettavano i canoni estetici e funzionali del settore, consigliando una razionalizzazione dello spazio degli edifici che generalmente erano costituiti da un corpo centrale destinato agli ospiti e da ali laterali adibite ai servizi. Il Savoia si adegua pienamente a questo modello e può essere considerato un esempio classico di albergo strutturato per rispondere alle esigenze di una clientela di fascia medio-alta.

La sua localizzazione è lontano dall’abitato, ma in posizione strategica lungo la via Regina, all’oggi nel comune di Laglio, alle pendici del monte Colmegnone, incorniciato da alti cedri e circondato sui due lati dal classico giardino “composito naturale”, tipico dell’epoca, dove si incontrano sottopassaggi a grotta e si intersecano vialetti di ghiaia e sistemi di scalette che delimitano le aiuole e conducono alla darsena della proprietà - ingresso della villa via acqua.

Quando l’albergo ha cessato l’attività l’edificio divenuto residenza, è stato rimaneggiato con interventi spesso discutibili (serramenti in alluminio anodizzato, copertura della dependance, tettoie, ecc.) e il giardino, in buona parte, è stato sacrificato in favore di un capannone prefabbricato adibito a cantiere nautico.

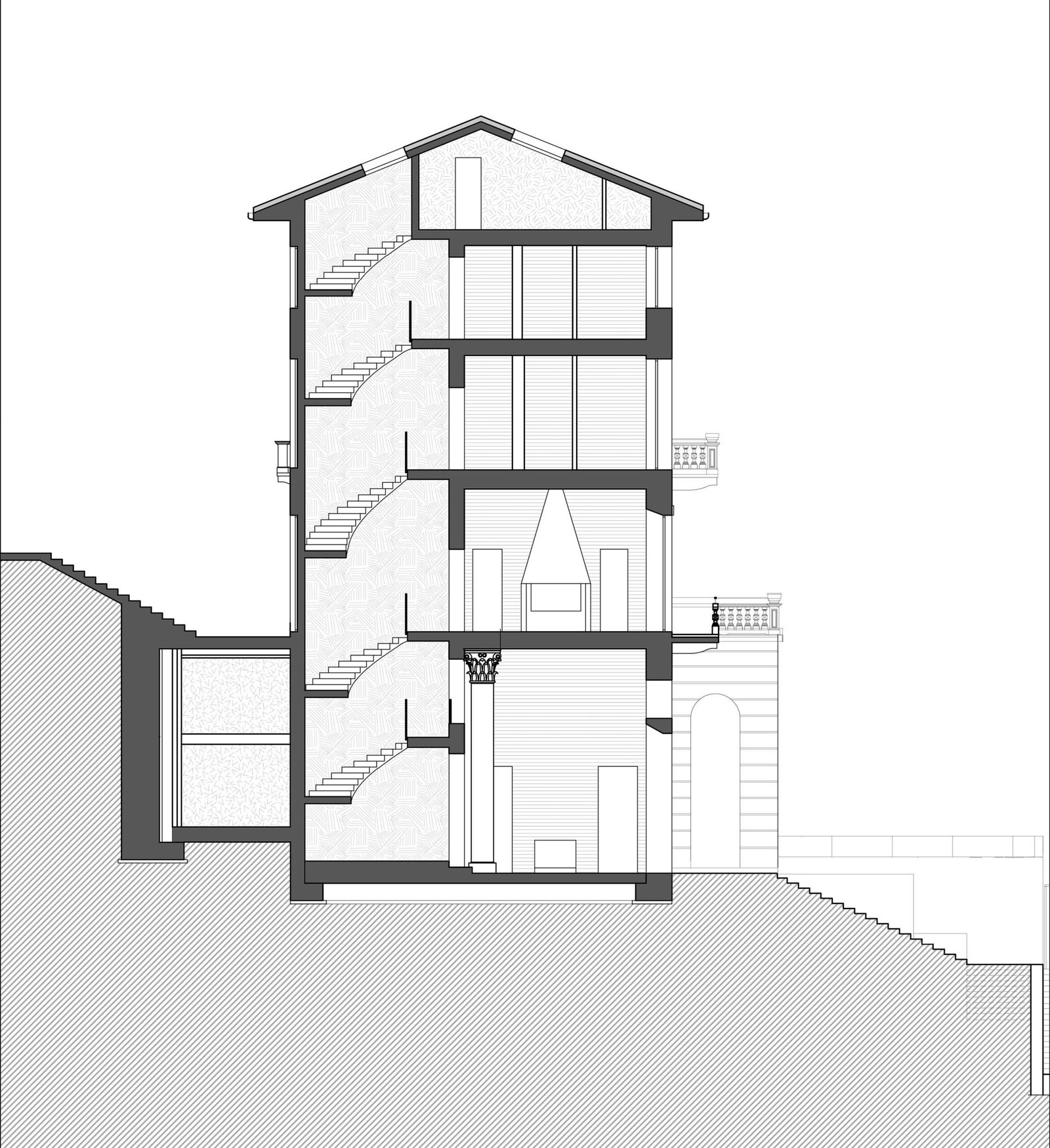
Nel momento in cui lo studio CarcanoStucchi viene chiamato ad operare l’immobile si trova in uno stato di precaria conservazione, poichè il fabbricato, nel corso degli anni, è stato abitato e ristrutturato solo parzialmente. Il piano terra, il secondo, il terzo e il sottotetto sono di fatto al rustico, privi di impianti e di qualsiasi tipo di finitura come pavimenti e rivestimenti. Le zone all’epoca abitate erano il piano primo della villa padronale ed il fabbricato denominato "dependance".

Il progetto proposto dallo studio ha lo scopo di ristrutturare interamente la proprietà, conferendole l’identità di villa singola di pregio con servizi annessi (zona per ospiti e per servitù), parco con piscina e relativi servizi, anche se l’edificio in questione aveva a suo tempo destinazione ricettiva - Hotel Savoia.

Al fine di proporre una tipologia coerente con le ville tipiche del lago di Como sono stati mantenuti gli elementi decorativi di facciata (cornici, colonnine dei balconi, fasce marcapiano, ecc.) intervenendo con accurato restauro; mantenuta la struttura divisoria interna caratterizzata da locali semplici e lineari nelle forme, in stile classico; mantenuta la copertura a quattro falde con manto in coppi recuperati; realizzati serramenti in legno con persiane oscuranti scorrevoli all’interno dei muri perimetrali (come da particolare originario).

Tali interventi di sistemazione generale hanno avuto lo scopo di ripulire l’edificio dalle superfetazioni che sono state aggiunte nel corso degli anni, oltre che a dare spazio ad un volume aggiuntivo di nuova realizzazione coerente con le norme del relativo Piano di Recupero. Il volume in aggiunta venne realizzato interamente a piano terra, avanzando di fatto le due ali laterali esistenti e mantenendo inalterato in tal modo il prospetto fronte lago (caratterizzato da tre grandi archi e bugnato esterno). Questo intervento accresce il volume della zona giorno, aumentando di fatto anche il rapporto della stessa con le aree esterne. L’altezza interna dei locali in progetto venne mantenuta identica a quelli esistenti al piano terra che, se pur esagerata rispetto alle altezze di norma (mt 6,25 contro i mt 2,70 del Regolamento Locale d’Igiene Vigente per locali abitabili), conferisce all’ampliamento un carattere deciso ed importante, in armonia con gli spazi originari.

Le modifiche apportate al fabbricato originale, oltre a migliorare esteticamente e funzionalmente l’edificio, hanno avuto come scopo ultimo quello di realizzare una struttura che risultasse conforme alle normative vigenti in materia di risparmio energetico, grazie alla selezione di impianti e tecnologie innovative che hanno reso funzionale e performante l’edificio attuale.

I progettisti seguirono in aggiunta il progetto del giardino dell’intera proprietà che vide la demolizione del capannone nautico e la sistemazione di tutte le aree a verde e la relativa vegetazione.

I terrazzamenti che si affacciano sul lago ospitano inoltre una nuova piscina interrata a sfioro rivestita con lastre di pietra di Moltrasio, tipiche del contesto. La nuova area benessere inclusiva di sauna, spa e locali massaggi si colloca anch'essa in stretta relazione agli spazi interrati ed in affaccio sulle aree dedicate al giardino.

L’intervento complessivo seguito dallo studio CarcanoStucchi ha donato una nuova vita allo storico fabbricato di Hotel Savoia attraverso rinnovati utilizzi, supplementari spazi, ricche decorazioni e moderni accessori. Il tutto rispettando la dignità architettonica e paesaggistica di questo luogo intrinseco di memorie.

cantiere

stato di fatto

incarico:
progetto architettonico _ preliminare, definitivo, esecutivo e direzione lavori
progetto piscina, spa ed esterni _ preliminare, definitivo, esecutivo e direzione lavori

committente:
privato

imprese:
Impresa Mondelli Battista srl
Almar Elettrotecnica srl
Dotti Idraulica
Culligan
Lario Garden srl

collaboratori:
Studio Ing. Dotti

fotografie:
studio CarcanoStucchi

Contattaci qui