VILLA CAPOANA

la tutela di un’antica villa del seicento

varenna (lc) _ località fiumelatte
2012-2014
villa storica _ parco, darsena
2.663 mq lotto | 1.750 mq abitativi

Villa Capoana è una delle ville più antiche dell’intero lago di Como; ubicata a Fiumelatte, località del comune di Varenna, in provincia e sulle coste lacustri del ramo di Lecco.
Fu costruita nel 1605 da Ercole Sfrondati, duce di Monte Marciano, probabilmente sui resti dell’antica villa romana di Plinio il Vecchio. Successivamente fu proprietà di duca Serbelloni e fu oggetto d’interesse per poeti ed intellettuali del tempo, i quali scrissero e cantarono la sua incantevole bellezza.

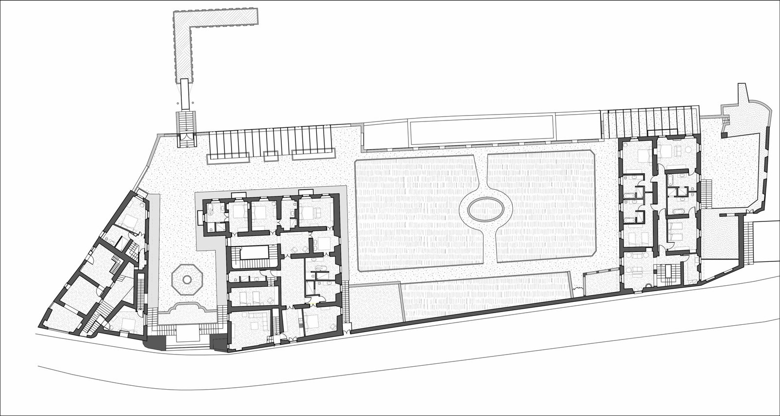
La villa, sotto la tutela delle belle arti, è composta da tre corpi separati, un’ampia darsena che ancora oggi può ospitare barche fino a 7 metri di lunghezza, un esteso e ricco parco che circonda gli immobili e si affaccia sul lago in direzione di Bellagio, una fontana storica che accoglie le acque di Fiumelatte - il secondo fiume più corto d’Italia -, un ninfeo caratterizzato da colonne doriche ed una vasca decorata da rocce artificiali.
Nei primi anni del XIX secolo, quando venne costruita la strada cosiddetta militare, la villa Capoana venne divisa dalla fontana - rimasta al di sopra di questa stessa nuova strada. Nella proprietà insiste ancora la vasca, in prossimità dell’entrata pedonale, che raccoglie le acque del torrente e conduce all’interno della proprietà stessa.

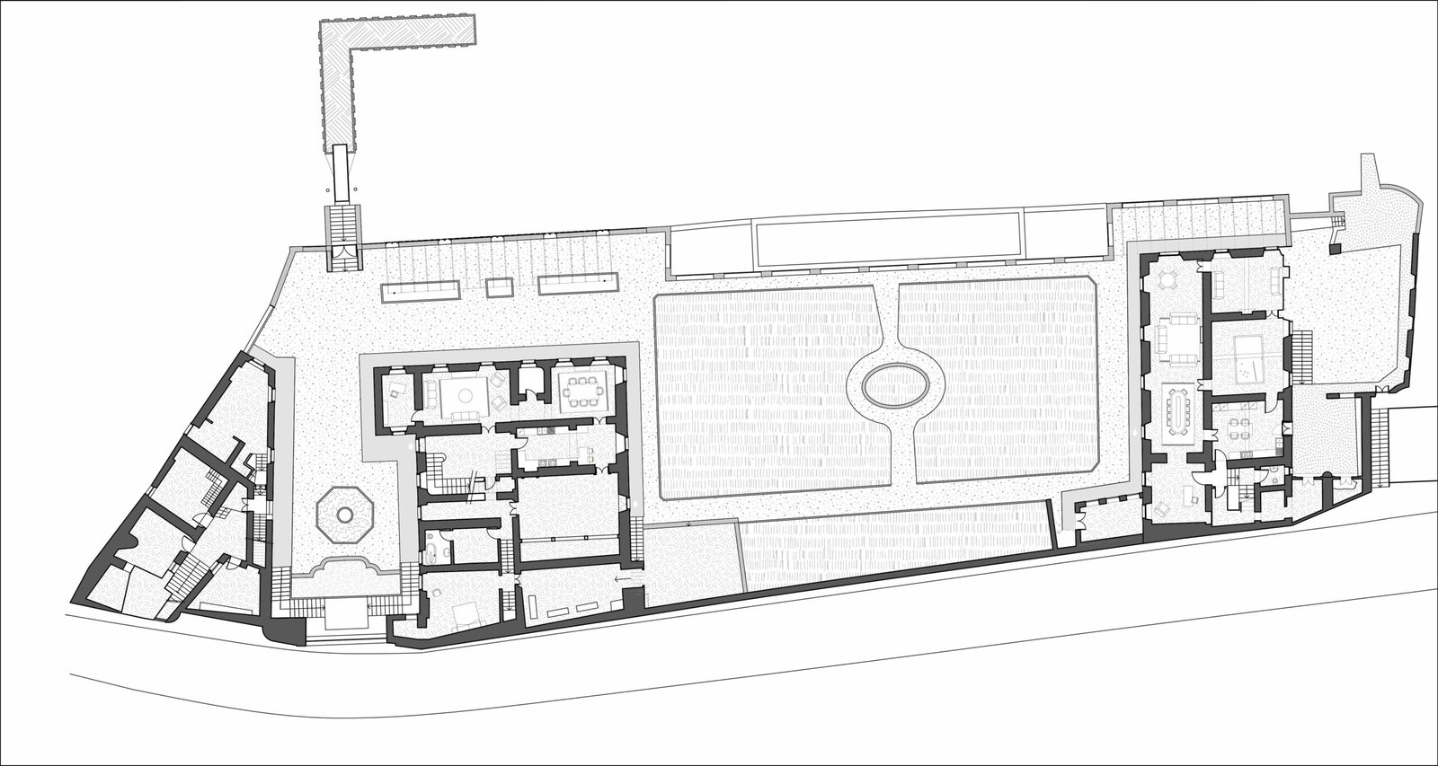
L’intervento di restauro conservativo e di valorizzazione dell’intero compendio della villa Capoana venne assegnato allo studio CarcanoStucchi nell’anno 2012. Si iniziò ad operare solo a seguito di accurate analisi e ricerche svolte da collaboratori esperti nel settore. Furono eseguite le dovute analisi dello stato di conservazione dei fabbricati allo stato del luoghi e, successivamente, furono effettuate delle proposte d’intervento che rispettassero al massimo il valore del manufatto.

Il cantiere comprendeva il corpo centrale ed i due corpi laterali, uno di essi con darsena, intervenendo sia all’interno che all’esterno dei fabbricati. Le facciate presentavano stesure pittoriche interessate da esfoliazioni, cadute di colore, macchie, colature e dilavamenti, sia sulle porzioni semplicemente tinteggiate che sulle parti decorative, tanto che alcuni stemmi e ornamenti erano frammentati e di difficile lettura. Alcune facciate presentavano degradi causati da problematiche di ordine statico, causando fessurazioni di discreta profondità e estensione. le finiture di intonaco, intonachino e tinteggiatura sono state sovrapposte in diverse fasi temporali e possono essere riconosciute tramite analisi dettagliate.

La fase di intervento vede la messa in opera di soluzioni legate alla messa in sicurezza della struttura e dei suoi strati di finitura, azioni legate a ripristinare e preservare la salubrità delle murature e dei relativi strati di finitura. Si propongono quindi tipologie di intonaco aerante, stuccature delle fessurazioni, pulitura delle zone interessate da colonie biologiche e macchie, rimozione delle tinte sintetiche, velature delle superfici con colori a calce o ai silicati di cromia simile a quelli esistenti.
Un intenso e minuzioso lavoro è stato effettuato anche rispetto agli spazi dei locali interni oltre che alle risoluzioni applicate sugli esterni. Si intervenne innanzitutto sul miglioramento delle condizioni igieniche sanitarie e sulla valorizzazione funzionale della distribuzione interna. Inoltre, si operò per la resa salubre delle solette e spazi controterra, realizzando un sistema di vespai aerati, oltre che all’installazione di un completo impianto di riscaldamento a sostituzione delle stufe a legna presenti.

Per quanto riguarda il ripristino dei materiali di finitura (quali pavimenti e rivestimenti) si optò per la sostituzione nelle aree in cui erano già stati sostituiti i materiali originali con altri di epoche recenti che alteravano la natura locale e storica di detti dettagli. Si scelse la posa di pavimenti in legno e cotto posati a spina di pesce, marmo posato a casellario per i servizi igienici, pietra locale con finitura bocciardata a punta grossa per il rivestimento della scala esistente - richiamando le tecniche di lavorazione di un tempo -, parapetti in ferro battuto e pareti velate da colori chiari e pastello ad eccezione di bagni e cucina realizzate in stucco lucido con cromie in armonia con i soffitti. Questi ultimi hanno subito un importante lavoro di restauro a causa di interventi non idonei negli anni precedenti che li hanno completamente coperti fino a renderli invisibili. Sono quindi stati riportati alla luce come da disegni originali con ingente impegno economico.
Lo scopo di questi interventi volge a ripulire l’edificio dalle superfetazioni che sono state aggiunte negli anni, sistemare i danni provocati dall’assenza di manutenzione frequente e dotare l’edificio di impianti idonei alle esigenze dei nuovi proprietari e conformi alle norme vigenti. Il tutto con l’obiettivo di restituire le qualità di pregio, importanza e virtù ad un complesso storico di preziosissimo valore storico e di cultura locale.

All’oggi la villa si dedica a diverse modalità d’utilizzo rispetto a quelle di un tempo - struttura turistico ricettiva di lusso con viste panoramiche esclusive delle coste del lago di Como.

Scopri ora Villa Capoana, o prenota la tua permanenza

cantiere

stato di fatto

incarico:
progetto architettonico di restauro _ preliminare, definitivo, esecutivo e direzione lavori

committente:
privato

imprese:
Imprese artigiane locali

collaboratori:
Luzzana Restauri srl
Studio Ing. Dotti

fotografie:
Ottica Piffaretti

Contattaci qui