VILLA COCCINI

la rinascita di una presenza storica

moltrasio (co)
2019 - 2021
villa padronale _ dependance, palestra, terrazza, giardino
5.065 mq lotto - 950 mq abitabili

Il compendio immobiliare "Villa La Rotonda" più noto come Villa Coccini ha da sempre rappresentato un simbolo del paesaggio del paese di Moltrasio, essendo difatti già presente in alcune cartoline di fine 1800.
la nuova proprietà, dopo l’acquisto, ha affidato allo studio l’incarico di sistemazione dell’intero immobile e dell’esteso giardino di pertinenza. il fabbricato è rimasto inutilizzato e disabitato per molto tempo ma non ha mai smesso di manifestare il suo sapore autentico e singolare, che esprime a pieno la tipologia locale e le caratteristiche peculiari delle ville padronali situate sulle coste del lago di Como. le mura della villa simboleggiano luogo carico di testimonianze e di memorie le quali non potevano che essere valorizzate e messe in luce nel contesto di ristrutturazione.

l’obiettivo del progetto è stato quello di conservare le caratteristiche salienti ed originali del fabbricato, impreziosendo i dettagli, particolari e cromatismi dello stesso, oltre che ad incrementare la qualità abitativa offerta. si è per l’appunto optato al miglioramento delle prestazioni in termini di comfort agendo sulle murature - tramite pannellii isolanti posti sulla superficie interna delle pareti -; sugli impianti di nuova generazione - riscaldamento e raffrescamento - per garantire un buon controllo della temperatura interna; finiture e dispositivi tecnologici come serramenti di ultima generazione e sistemi di oscuramento.

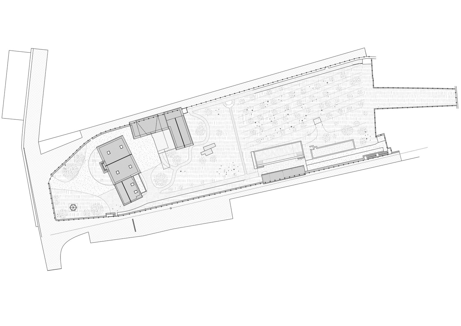
l’intera proprietà è composta oltre che dalla villa padronale, da una depandance articolata su due livelli, una corte centrale a cielo aperto, una terrazza rialzata e a copertura di una delle ali della stessa sede minore la quale ospita l’area spa e palestra, un ampio giardino articolato su più livelli e caratterizzato da diverse morfologie ed altimetrie - differente invece dal giardino di rappresentanza di fronte alla facciata principale ed adiacente al cancello carraio d’ingresso.

un ulteriore volume inserito nell’area verde, vicino al campo da bocce, ospita il garage e un’area servizio; al livello superiore è in progetto una piscina privata per la proprietà.

dal punto di vista estetico e cromatico la villa assume tinte di beige e grigio che si alternano sulle facciate e negli interni, accogliendo particolari in pietra - luserna locale - e ferro battuto, che arricchiscono e ribadiscono il tono signorile dell’intero possedimento. il giardino curato nei minimi dettagli offre fioriture alternate di meravigliose ortensie e vegetazioni locali.

il tutto a conferire un’atmosfera incantevole e fiabesca degna della storica Villa La Rotonda

stato di fatto

incarico:
progetto architettonico ed aree esterne preliminare, definitivo, esecutivo e direzione lavori

committente:
privato

imprese:
Petazzi Costruzioni srl
Almar Elettrotecnica srl
Dotti Idraulica

collaboratori:
Studio Ing. Dotti

fotografie:
Beatrice Giani

Contattaci qui