VILLA GELSOMINA

il rifiorire di un’abitazione signorile

moltrasio (co) _
2015-2016
villa padronale _ locali accessori, terrazzo ed ampia area esterna
2.072 mq lotto | 645 mq abitativi

La proprietà di villa Gelsomina è ubicata in una zona periferica del comune di Moltrasio, a confine con il comune di Carate Urio, caratterizzata dalla presenza di insediamenti residenziali di pregio e di antica formazione, frammisti ad altri con analoga destinazione ma meno datati.

L’immobile si colloca in un territorio dalla morfologia prevalentemente scoscesa, sul limite tra le rive del lago e la ripida montagna; difatti gode di un’ampia area esterna suddivisa in terrazzamenti a differenti quote, ricchi di vegetazione e fioriture locali. Il Gelsomino, da cui ne deriva il nome della villa stessa, è stato innestato anche sul terrazzo prospiciente l’edificio diventandone così segno identitario.

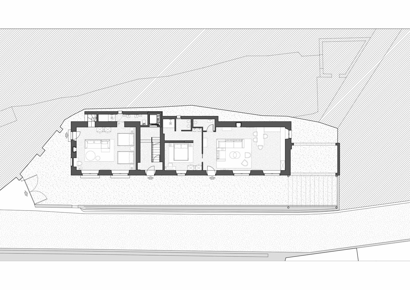
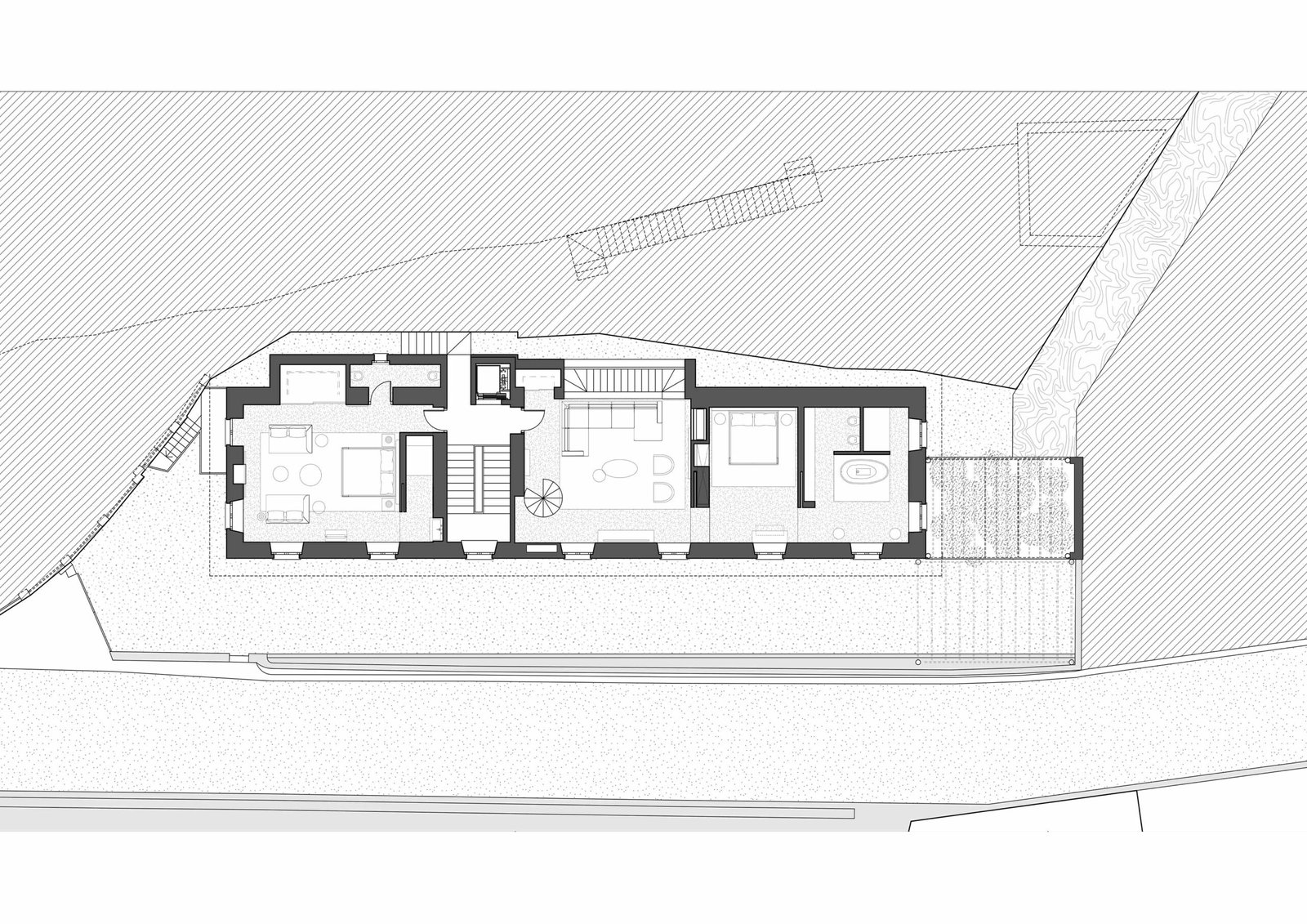
L’edificio esistente ha origini a metà del secolo precedente e composto da cinque unità residenziali disposte su quattro livelli fuori terra. Sulla balza adiacente all’ultimo piano sono collocati locali accessori.

L’intervento seguito dallo studio vede come tematiche principali la ricomposizione dei prospetti, il rifacimento della copertura esistente, l’isolamento e il rifacimento di pavimentazioni e strati coibentati dove necessari, una nuova distribuzione interna, l’aggiunta di pergolati esterni e la sistemazione dei muri a secco e dei terrazzamenti.

Data la morfologia longitudinale dell’edificio esistente, lo studio di architettura CarcanoStucchi propone di spostare dal corpo principale i sistemi di collegamento verticale - vano scala ed ascensore - all’esterno del volume originario. Venne così scavata la roccia retrostante il fabbricato permettendo di operare in tale spazio e guadagnare metrature e volumi necessari ad una più corretta e funzionale distribuzione degli spazi interni. Tale opera è risultata fondamentale per gli scopi che si erano prefissati ed è stata successivamente valorizzata per dare maggior carattere estetico anche agli spazi interni; difatti, dalla rampa di scale che collega la zona giorno alle camere, è stata collocata un’ampia vetrata in affaccio a tale parete rocciosa.

Le caratteristiche estetiche esteriori dell’immobile rispecchiano quelle delle residenze signorili della zona e, tramite decorazioni classiche, cornici alle finestre, persiane oscuranti e tetto a falde, si esaltano i volumi consistenti che si affacciano sulla storica via Regina, senza dimenticare il ruolo fondamentale del Gelsomino e della vegetazione locale che arricchiscono ancor di più gli elementi costruiti e gli spazi esterni di pertinenza alla villa.

cantiere

stato di fatto

incarico:
progetto architettonico _ preliminare, definitivo, esecutivo e direzione lavori

committente:
privato

imprese:
Petazzi Costruzioni srl
Almar Elettrotecnica srl
Dotti Idraulica
Lario Garden srl

collaboratori:
Studio Ing. Dotti
Ingrid Stayrer designer

fotografie:
Petazzi Costruzioni

Contattaci qui